The goal of Earth Domes is to reduce the cost of housing, while also creating sustainable, easy to build, and livable designs.
SERVICES
- Project Management
- Building Plan Design
- Building Construction
- Consultancy Services
- Land Surveying
- Landscaping
The first way we cut costs is by employing natural materials in our construction process. We try to use materials from the site, if at all possible. In doing this, it reduces the cost of materials and transportation of materials to the site.
The easiest way to cut costs is to build small, so we encourage homes to be built under 1500 sq ft, but ultimately it is left up to the homeowner. Not only are small homes less expensive to build, they're also easier to clean, and have lower utility and maintenance costs.
Shower
FEATURES
- Gravel-filled bags function on a rubble trench foundation
- Earthbag walls filled with white marl and 10% cement
- Earth-berming for improved energy performance
- Earth, stone or pigmented cement
- Stucco finish
- Affordable roof options such as cement slab, green roofs, etc.
- Small diameter, sustainably harvested wood
- Non-toxic finishes and materials for cabinets, etc.
- Energy-efficient appliances, such as solar or on-demand water heating, etc.
- Passive solar design
- Rainwater collection
Bedroom
Bathroom
Living Room
GREEN POLICY
Earth Domes believes that careful planning and design makes it easier to create nurturing environments for individuals, families and communities. It also averts costly mistakes along the way.
By applying ecological understanding we can foster many mutually beneficial relationships between ourselves, the land, our homes, families and the entire community. Such an approach to planning and design requires us to develop a capacity for whole systems thinking. Design and planning is thus an ongoing learning process. Ecological design is a constantly evolving dance.
We design, implement, observe, and redesign our lives and our homes.
NHT APPROVED
The National Housing Trust has approved the Super Adobe/Earthbag Building technology as a method of dwelling construction. These Earthbag structures are insurable by any insurance agency or adjuster.
SAMPLE PACKAGES
Please contact us for more information.
EarthHouse 1
1300 sq ft
The kitchen is designed for convenience and efficiency. This 1 bedroom affords ample sleeping and closet space.
The living room is well appointed with solar light tubes to bring in natural lighting.
All of our home packages include the following Design Options:
- Light Tube
- Water Catchment Collection
- Solar Hot Water Heater
- Solar Power for energy self sufficiency
- Built in features- seating & shelves
- Natural Flooring Options include pigment dyes, tiles, earthen floors, wood floors
- Clear story windows
EarthHouse 2
2000 sq ft
This 2 bedroom home is designed for couples and small families.
The kitchen is spacious and well appointed. The bedrooms are large and have walk-in closets with the convenience of sharing a bathroom.
The living and dining rooms follow a open space plan with a comfortable veranda.
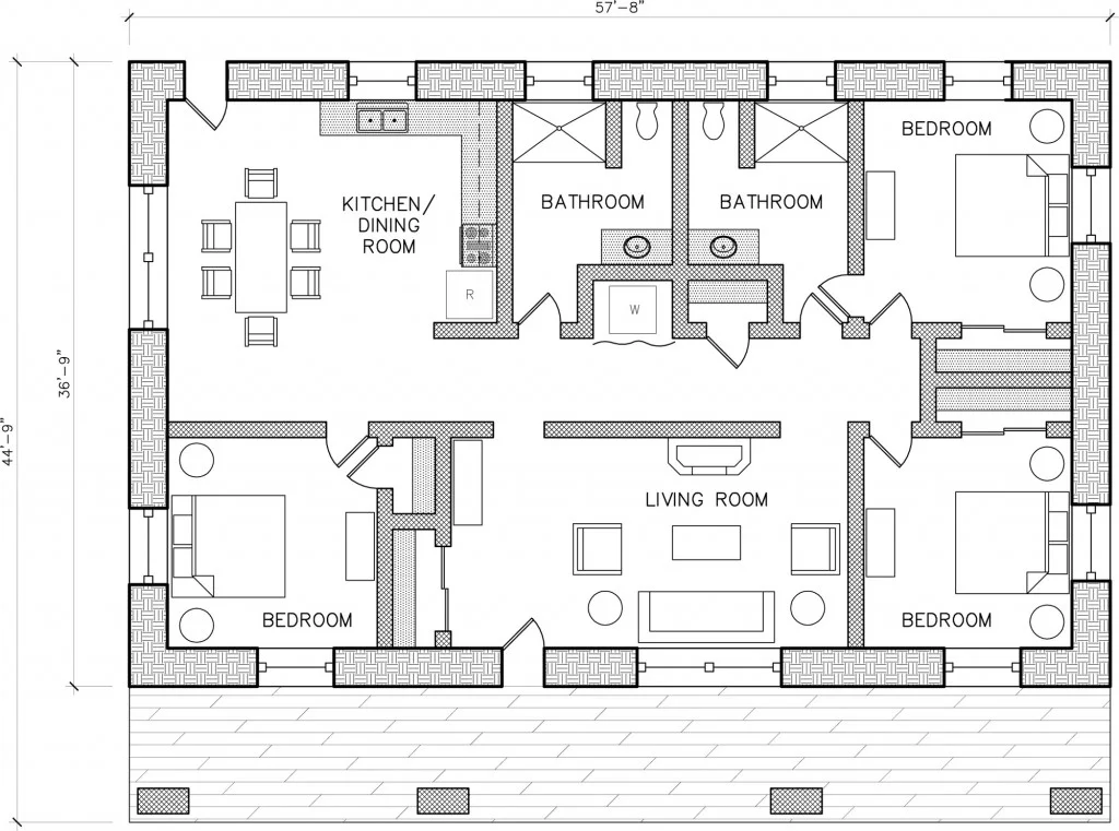
EarthHouse 3
2500 sq ft
This 3 bedroom home is designed for larger or extended families. Bedrooms are well equipped, with ample storage and closet space.
Two bathrooms are conveniently located and spacious. The living room is large and leads on to an extensive porch. Kitchen is modern and roomy.
30 foot Monolithic dome
2 bedroom 1 bath 706 sq feet plus veranda 104sq ft
810 sq ft
900 sq ft includes septic
Preliminaries - factors that will affect the cost of your building
Fencing
Tool shed
Tool transportation
Tool Rental
Housing
Site shower
Site bathroom
Site Security
Water delivery
Site supervision
Solar
$1,725,000 jmd
$11,500 USD
Electric
-internal wires connect to solar for internal and external power
-*connection to JPS will be done by owner
-2 electrical outlets installed in each bedroom room and on the veranda
-overhead lighting in each room
-4 electrical outlet in kitchen
-receptacles installed for a ceiling fan (*ceiling fan purchased by client)
Septic
$1,500,000 JMD
$ 10,000 USD
-plumbing from structure septic tank
-500-gallon septic tank placement underground
-construction of tile field for water from septic
Water Collection and Distribution
- 1000-gallon cistern constructed from concrete and Steele (Steele float)
-cistern constructed below dome, cover built with ½ in Steele for reinforcement
- gutter around house to collect rain water
-1/2 hp pump with filter purchased and installed to send water to structure
-grey water from face basin directed to garden
-connect to public water supply (*application for water connection done by owner)
Toilets
-standard toilets installed over tile and connected to septic (*any upgrade will be at owners expense)
-water supply to toilet from collection
Kitchen sink with faucet
-standard stainless Steele kitchen sink (single bowl) and faucet (*any upgrade will be at owners expense)
-installed and plumbed to septic
Bathroom
-standard vanity with sink (*any upgrade will be at owners expense)
-installed and grey water sent to garden
-glass enclosed shower stall with fixtures (*any upgrade will be at owners expense)
-shower walls tiled (*any upgrade will be at owners expense)
-installed and sent to garden
Flooring
-ceramic tile flooring for all rooms (*any upgrade will be at owners' expense)
Doors
-solid wood doors w hardware for exterior and interior doors
-doors purchased and installed after finish floor (*any upgrade will be at owners' expense)
-closet in each bedroom with standard louvre doors (*any upgrade will be at owners' expense)
Kitchen
-countertop built from concrete and Steele (Steele float finish) *any additional counter treatment at cost of owner)
-2 electrical outlets on counter for appliance
-1 electrical outlet on the wall for stove
-1 electrical outlet on wall for refrigerator
Kitchen island
-kitchen island to be constructed with concrete and Steele
-Steele float finish (ready for tile or stone application)
-open below counter to allow for cabinet works
Veranda
-covered veranda 10x14
-2 electrical outlets
-steps to access veranda constructed from concrete
Light Tubes
-6 in light tubes installed in each room
-1/4 in glass to cover light tubes
-waterproof sealant used to seal glass
-interior of glass tubes rendered
Paint
-2 coats of latex paint applied to interior
-1 coat of latex to exterior
-1 coat of Siliconized acrylic modified coating
*Plan does not show covered veranda
30 ft The Oberon | Monolithic.org
